Home
Photography
Pottery
BIM Projects
About
Contact
Home
Photography
Pottery
BIM Projects
About
Contact
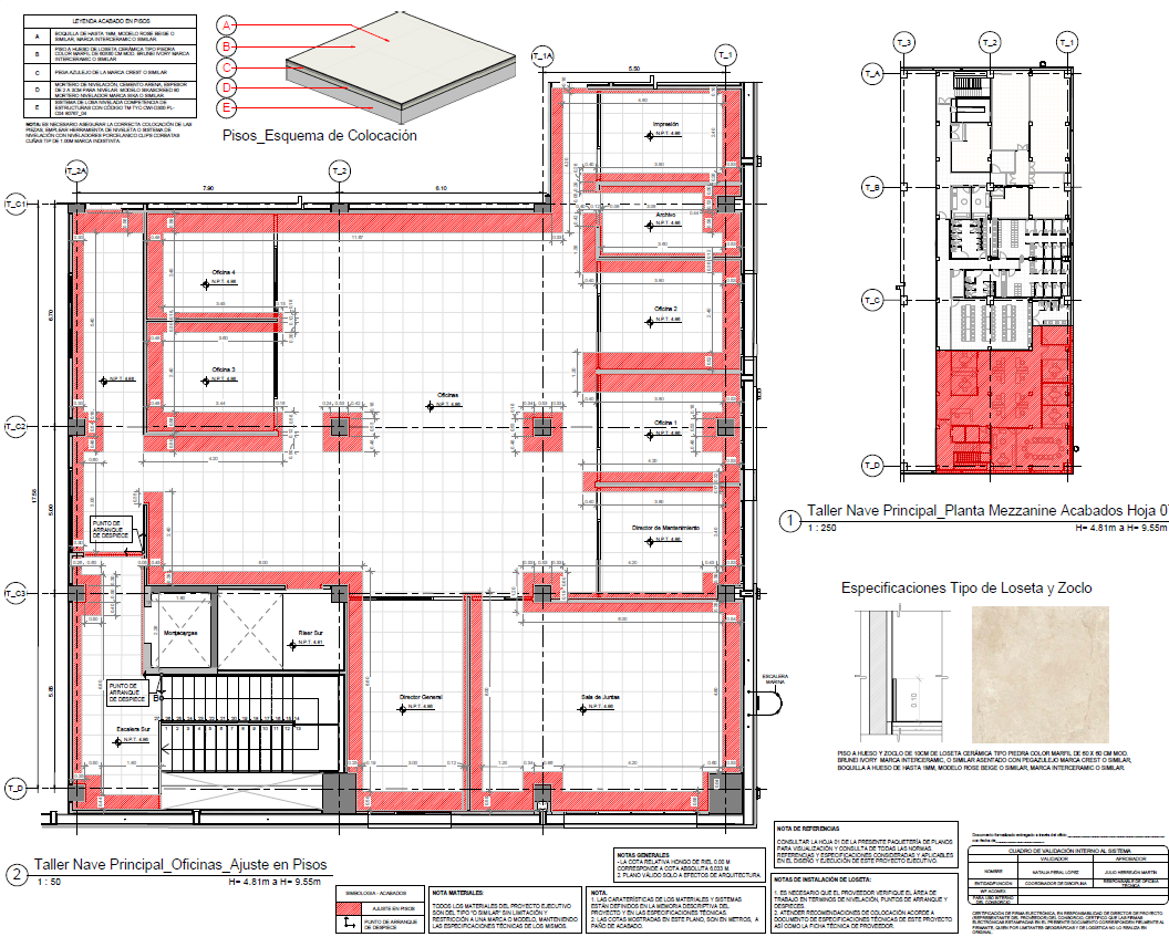
Tren Maya - Talleres y Cocheras
↑
Back to Top